- Home
- 間取りご相談事例/熊本県YMさま
間取りご相談事例/熊本県YMさま
子世帯部分のみ間取り相談希望。熊本県YMさま
お客様データ
- 家族構成:夫婦+子供2人+両親
- 木造2階建て、二世帯住宅、約56坪
- ご利用の間取り相談:スタンダードコース
- ご主人様が建築業界の方でつきあいのあるビルダーに依頼。
- 子世帯部分のみ間取り相談をご希望。
- 相談時期:2018年5月30日
お客様からいただいたお声
-276x300.jpg)
坂口さん ご無沙汰してます! 間取り相談の際は大変お世話になりました。 報告が大変遅くなりました。3月末に入居して快適に過ごしています。
スマホで写真とるのが難しかったですが …見てください。
(写真)
坂口さんにご相談して一番よかったのはトイレと洗面所の位置です!めっちゃ使いやすいです
坂口さんには感謝でいっぱいです。ありがとうございました!
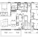
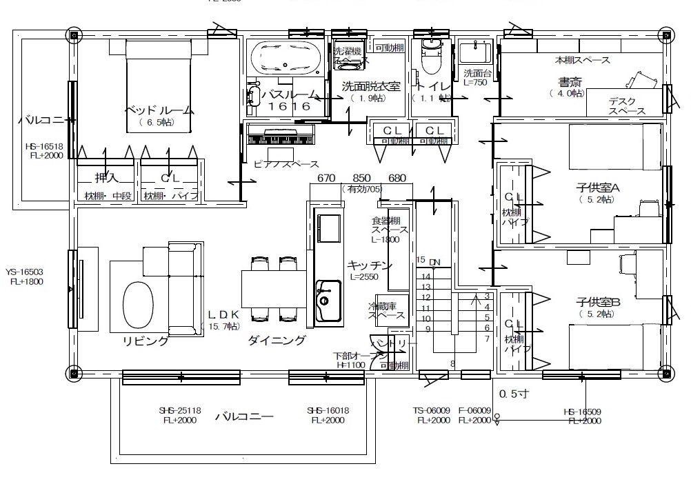
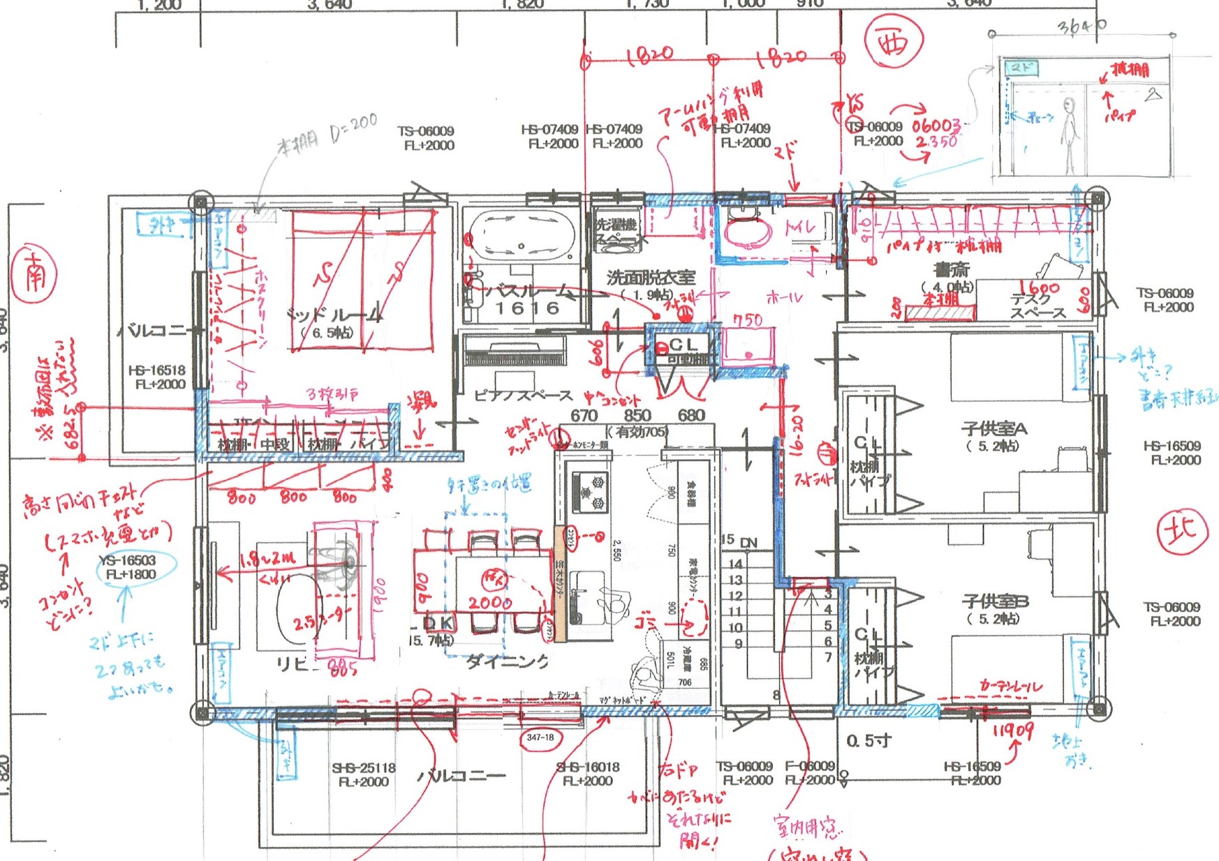
図面や完成した家の写真
クリックで拡大表示できます。
- お客様からお送りいただいた、完成した家の写真
- ご相談後「間取り改善案」の図面
- ご相談前の図面






