- Home
- 間取りご相談事例/大阪府Aさま
間取りご相談事例/大阪府Aさま
2件目のマイホームは失敗したくない/大阪府Aさま
お客様データ
- 家族構成:夫婦+子供3人
- 木造2階建て、約33坪
- ご利用の間取り相談:プレミアムコース
- 1棟目はビルダーの言われるがままで暮らしにくい間取りだった。
- 相談時期:2017年5月12日
お客様からいただいたお声
大変ご無沙汰しております。 おかげさまで竣工いたしました。
先生の沢山アドバイス頂いたおかげで非常に満足、納得のいく家が出来たと思います!!
親父の隠れ家もステップインにしなくて良かったですw
写真だけでは分かりにくいですが、二階の屋根裏天井下のスペースや布団収納、バルコニー、ガレージ収納など、坂口さんにお願いしなければなかったと思います。
お役に立ちそうであれば写真は使用頂いて構いません。
また何かございましたらお願い致します。
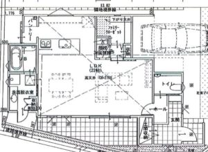
ご相談前とご相談後の提案図面の写真
クリックで拡大表示できます。
- ご相談後「間取り改善案」の図面
- ご相談前の図面
お客様から頂いた竣工後の写真
クリックで拡大表示できます。






































