- Home
- 間取りご相談事例/長野県Nさま
間取りご相談事例/長野県Nさま
目次
ビルダーの間取りで満足していたご主人も相談がはじまると…。熊本県YMさま
お客様データ
- 家族構成:夫婦+子供1人+もう一人予定
- 木造2階建て、約34坪
- ご利用の間取り相談:スタンダードコース
- ご主人様は反対ではないが、ビルダーの間取りで十分満足していた。
- 間取り相談が始まると、ご主人様の方が前のめりの様子。
- 相談時期:2019年1月26日
お客様からいただいたお声
この前、友人が来た時に「聞いてた坪数より広く感じる」って嬉しいことを言ってくれました。
入居前から思っていましたが玄関に余裕があるのも私たちのお気に入りです!!
坂口さんに間取りを見ていただく前の玄関だったらと思うと、恐ろしや~と思えることが幸せです!!
そういう、ゆとりが坪数より広く感じたりするのかな~と思っています。階段もそうですが、ゆとり。って大事ですね!!
吹き抜けの開き扉は1階の光を遮ってくれるにすでに大活躍です!
窓じゃなくて全部壁だったら、こうこうと電気の光が2階に入ってきたと思います。
2階ホールからの解放感よりも窓の方がデザイン的にもポイントになり、もうすでに私たち夫婦のお気に入りで大大大大大大満足です。すでに主人は、友人に自慢気でした。
ちなみにすみません。
ハウスメーカーの間取りに満足してると言っていた主人ですが、
住んでみると余計に、坂口さん間取りの提案のすごさに感動してる。
新居で生活していて不便がない!!と言ってました。
本当にありがとうございます!!!!
主人は、坂口さんの間取り相談に反対はしませんでしたが、当初自分はハウスメーカーの間取りでいいって言ってましたから。
私たちはやっぱり、図面や想像ではわからないことだらけだったので、坂口さんの「自分の家だったら」と、「住んでからの目線」で考えてくださるの本当に有難かったです。
ハウスメーカーは家を作ることに一生懸命な気がしますが、坂口さんは家の中、そこでの生活を考えてくださってると実感します。
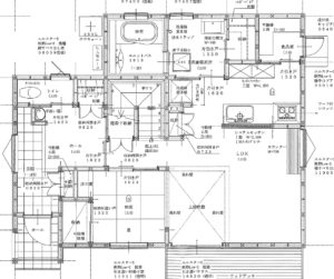
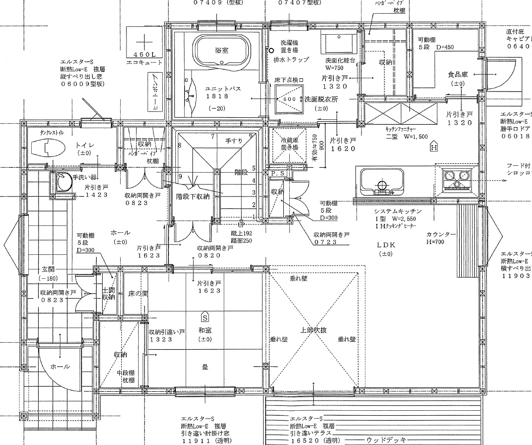
ご相談前とご相談後の提案図面の写真
クリックで拡大表示できます。
- ご相談前の図面
- ご相談後「間取り改善案」の図面
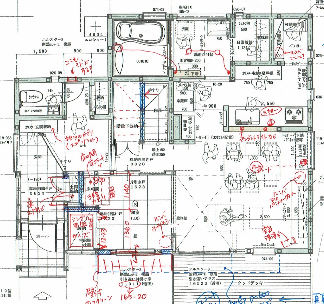
お客様から頂いた竣工後の写真
クリックで拡大表示できます。






















